€
EUR
PROPERTIES
DEVELOPMENTS
INVESTORS
DEVELOPERS
ABOUT US
CONTACT
Mais
PROPERTIES
DEVELOPMENTS
INVESTORS
DEVELOPERS
ABOUT US
CONTACT
0
0
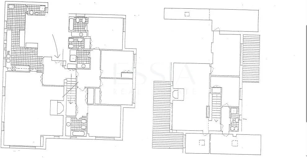
5-bedroom duplex apartment with 4 fronts and views of the Douro River and sea
Porto, Porto
Back
\
5-bedroom duplex apartment with 4 fronts and views of the Douro River and sea - Porto, Porto
Share Property
Facebook
X
Pinterest
WhatsApp
Copiar link
Link copiado
Print Sheet
Send property to a friend
Insert a name
Insert an email
Please enter a valid email address
Insert a name
Insert an email
Please enter a valid email address
I have read and agree to the terms and conditions set forth.
Know more »
To finish this operation you should read and agree with our conditions.
Required fields *
Send
Photos
Floor Plan
Seguir imóvel
Seguir imóvel
Receba um alerta quando existir uma Baixa de Preço
Name
Enter your name
E-mail
Enter your email
Please enter a valid email address
Li e aceito a
Privacy Policy
To finish this operation you should read and agree with our conditions.
Insert the code from the image
Code
Send
5-bedroom duplex apartment with 4 fronts and views of the Douro River and sea
1 200 000 €
Ref.:
RZ0358
5-bedroom Duplex Apartment with Panoramic Views in Quinta de Miramar, Foz do Douro
Located in the prestigious Quinta de Miramar, this elegant 5-bedroom duplex apartment, originally 6 bedrooms, offers an exclusive living experience, marked by privacy, brightness, and stunning views over the mouth of the Douro River and the sea. With four fronts the property benefits from exceptional sun exposure, ensuring comfort and well-being in all rooms.
Property Features
The social area stands out for its spaciousness and brightness, distributed over two rooms—one per floor—both equipped with a wood-burning stove, ideal for moments of conviviality and leisure. The kitchen is functionally connected to the laundry room, ensuring practicality in everyday life.
In the private area, there are three suites (one with a balcony) and two additional bedrooms, providing privacy and comfort for the whole family.
The apartment also has a garage for four cars and three storage rooms (two integrated into the house and one in the garage).
Location and Surroundings
Located in Quinta de Miramar, this 5-bedroom duplex combines tranquility and exclusivity with a strategic location in Foz do Douro. Nearby are the Catholic University, swimming pools, and the Municipal Police. The area benefits from excellent access to shops, services, transportation, and leisure facilities, offering a perfect balance between urban comfort and quality of life.
The condominium is gated, with a small garden for the exclusive use of residents, ensuring privacy and security. The building has only three floors, with one unit per floor.
Main Highlights
5-bedroom duplex with 4 fronts
3 suites (one with a balcony) + 2 additional bedrooms
Terrace of approximately 20 m² with panoramic views
Garage for 4 cars and 3 storage rooms
Gated community with a small garden and maximum privacy
Schedule your presentation with an ESSIA REAL ESTATE consultant.
With consolidated experience in the national real estate market, we develop rigorous marketing strategies, tailored to each property and each client profile. We operate with discretion, continuous market analysis, and an approach focused on asset appreciation and the security of the entire process.
Complete support, from start to finish.
ESSIA REAL ESTATE. Consolidated essence. Contemporary vision.
5 bedrooms
6 Bathrooms
4 Garages
296 m² Useful Area
375 m² Gross Area
296 m² Private Gross Area
Property Type
Flat
Typologie
5 bedrooms
Objective
Sell
Condition
Used
Price
1 200 000 €
Year of Construction
1993
Country
Portugal
District
Porto
County
Porto
Parish
Aldoar, Foz do Douro e Nevogilde
Zone
Foz do Douro
Interested in this property?
Date
Hora
Name
Insert a name
E-mail
Insert an email
Please enter a valid email address
Contact
Enter your phone contact
Message
Request more information, without any commitment about the property RZ0358
I have read and agree to the terms and conditions set forth.
Privacy Policy
To finish this operation you should read and agree with our conditions.
Code
Enter the Security Code
Send
Simulador de Crédito
Simulador de IMT
Property value*
Loan Amount*
A sua idade*
Prazo empréstimo *
Monthly payment
0.00
€
The value of the benefit presented does not include Life Insurance and Home Insurance.
Indexing
0.000
%
TAEG
0.000
%
Spread
0.000
%
Term
0
years
APR
0.000
%
Simulate
The information generated in this simulator is intended to provide information of an exclusively indicative nature to the user, not conferring any binding value or data collection for commercial purposes.
Property location*
Select
Continental Portugal
Autonomous regions
Goal*
Select
Own Permanent Housing
Secondary Housing or Rental
Rustic Buildings
Others
Property value*
Complementary values*
IMT
0.00
€
Stamp Tax (0.8%)
0.00
€
Complementary values
0.00
€
Total payable
0.00
€
More information
Simulate
The information generated in this simulator is intended to provide information of an exclusively indicative nature to the user, not conferring any binding value or data collection for commercial purposes.
Dados de Intermediação de Crédito - (Intermediário de Crédito nº )
Learn more about your simulation
Name
Required field
E-mail
Required field
Invalid email
Contact
Required field
Comments
This is just a simulation. This credit simulation is non-profit.
Li e aceito a
Privacy Policy
To finish this operation you should read and agree with our conditions.
Code
Enter the Security Code
Send
General Features
General
Rooms
Rooms
Area
Floor
Walls
Ceilings
Comments
Environment
Facilities
Domotic System (Home automation)
Renewable Energies
Similar Properties
Porto, Porto
4 000 €
3 Bedroom Apartment for Rent at Monte da Ervilha, Foz do Douro
4 000 €
3 Bedroom Apartment for Rent at Monte da Ervilha, Foz do Douro
Porto, Porto
3
4
4
260 m²
A. Bruta
255 m²
A. Bruta Privada
240 m²
A. Útil
Contact
Porto, Porto
290 000 €
Renovated 2 Bedroom triplex Apartment with Terrace in Serpa Pinto
290 000 €
Renovated 2 Bedroom triplex Apartment with Terrace in Serpa Pinto
Porto, Porto
2
2
110,5 m²
A. Bruta
72,9 m²
A. Bruta Privada
72,9 m²
A. Útil
37,6 m²
A. Terreno
Contact
Porto, Porto
832 000 €
Renovated 3 Bedroom Apartment with Balconies
832 000 €
Renovated 3 Bedroom Apartment with Balconies
Porto, Porto
3
3
1
148 m²
A. Bruta
127 m²
A. Bruta Privada
127 m²
A. Útil
21 m²
A. Terreno
Contact
More properties +
Estamos disponíveis para o ajudar
Pretendo ser contactado
Date
Hora
Name
Insert a name
E-mail
Insert an email
Please enter a valid email address
Contact
Insira o seu Contacto
Message
Li e aceito a
Privacy Policy
To finish this operation you should read and agree with our conditions.
Code
Enter the Security Code
Send
O que é a pesquisa responsável
Esta pesquisa permite obter resultados mais ajustados à sua disponibilidade financeira.